Regresar
16 fotos
resumen
descripción
Descubra este encantador departamento ubicado en el prestigioso sector de Quito Tenis, ideal para quienes buscan comodidad y una ubicación privilegiada en la ciudad de Quito. Cerca del Supermaxi, centros médicos, restaurantes. El departamento cuenta con un balcón, ofreciendo un espacio perfecto para disfrutar de la vista y del aire fresco. Además, dispone de una bodega, brindando espacio adicional para almacenamiento.
Características:
Dormitorio master con baño completo
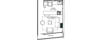
50.91 m2 cubiertos
3.62 Balcón
Sala, comedor y cocina
Baño social
Área de lavandería
1 parqueadero
1 bodega
8 pisos de altura
21 departamentos
2 subsuelos de parqueaderos
Amenities:
Moderno Lobby
Gimnasio
Pet Spa
Rooftop vista 360°
Sky Bar
Zona BBQ
Firepit
Jacuzzi
Edificio con:
Seguridad virtual
Generador eléctrico
Circuito de cámaras
Parqueaderos de Visitas
Bombas de Calor
Cisterna de agua
Ascensor
Precio: $ 98.300
otros detalles
Comedor
Sala – comedor
Cocina
Baño completo
Baño social
Área de lavandería
Bodega externa
Balcón
Parrilla/BBQ
Jacuzzi
Gimnasio
Parrilla/BBQ
Spa
Salón de eventos
Canchas deportivas
Ascensor
Club House
Hidromasaje
Calefacción
Generador eléctrico
Cisterna
Agua potable
Electricidad
Seguridad 24/7
Cámaras de seguridad
Circuito cerrado (CCTV)
Cercado de seguridad/eléctrico
Acabados modernos
Alrededores y conveniencia
consultar a hiinmo
Cargando temas de consulta...
